Prawidłowe zbrojenie belki żelbetowej to absolutny fundament bezpieczeństwa i trwałości każdej konstrukcji budowlanej. To właśnie stalowe pręty, współpracując z betonem, przejmują kluczowe obciążenia siły rozciągające i ścinające, które w przeciwnym razie doprowadziłyby do zniszczenia elementu. W tym praktycznym przewodniku przyjrzymy się bliżej zasadom projektowania i wykonawstwa zbrojenia, opierając się na obowiązujących w Polsce normach i najlepszych praktykach inżynierskich.
Prawidłowe zbrojenie belki żelbetowej klucz do trwałości i bezpieczeństwa konstrukcji
- Zbrojenie belki żelbetowej jest fundamentem bezpieczeństwa konstrukcji, przenoszącym siły rozciągające i ścinające.
- Podstawą projektowania i wykonawstwa jest norma PN-EN 1992-1-1 (Eurokod 2), określająca zasady dotyczące otuliny, rozstawu i zakotwienia prętów.
- W Polsce najczęściej stosuje się stal B500SP, cenioną za wysoką ciągliwość i spajalność, często potwierdzoną certyfikatem EPSTAL.
- Kluczowe elementy to zbrojenie główne (podłużne), strzemiona (poprzeczne) oraz pręty montażowe.
- Należy bezwzględnie przestrzegać zasad konstrukcyjnych, takich jak odpowiednia grubość otuliny, rozstaw prętów i strzemion oraz długość zakotwienia.
- Unikanie typowych błędów wykonawczych, np. niewłaściwej otuliny czy zbyt krótkich zakładów, jest niezbędne dla solidności konstrukcji.
Rola zbrojenia: jak stal współpracuje z betonem?
Beton, choć niezwykle wytrzymały na ściskanie, ma relatywnie niską wytrzymałość na rozciąganie. Stal zbrojeniowa z kolei doskonale radzi sobie z tym drugim rodzajem obciążeń. Połączenie tych dwóch materiałów w żelbecie tworzy synergiczny efekt beton przejmuje ściskanie, a stal rozciąganie. Dzięki temu belka żelbetowa może efektywnie przenosić złożone obciążenia, takie jak zginanie czy ścinanie, co jest fundamentalne dla stabilności całej konstrukcji.
Konsekwencje błędów w zbrojeniu: od pęknięć po katastrofę budowlaną
- Nadmierne pęknięcia betonu, które osłabiają konstrukcję i obniżają jej estetykę.
- Nadmierne ugięcia belki, prowadzące do uszkodzeń elementów współpracujących (np. stropów, ścian).
- Korozja zbrojenia spowodowana zbyt małą otuliną, prowadząca do jego osłabienia i utraty nośności.
- Nawet katastrofa budowlana w skrajnych przypadkach, gdy błędy są na tyle poważne, że konstrukcja nie jest w stanie przenieść przewidywanych obciążeń.
Eurokod 2 (PN-EN 1992-1-1): norma, której musisz przestrzegać
W Polsce projektowanie i wykonawstwo konstrukcji żelbetowych, w tym zbrojenia belek, opiera się na normie PN-EN 1992-1-1, znanej szerzej jako Eurokod 2. Ten kompleksowy dokument zastąpił wcześniejsze polskie normy i stanowi podstawę dla inżynierów i wykonawców. Eurokod 2 precyzyjnie określa zasady dotyczące m.in. wymaganego stopnia zbrojenia, minimalnej grubości otuliny betonowej, długości zakotwienia prętów oraz ich dopuszczalnego rozstawu. Przestrzeganie zapisów tej normy jest nie tylko kwestią jakości, ale przede wszystkim gwarancją bezpieczeństwa użytkowania obiektu budowlanego.
Poznaj zbrojenie belki: kluczowe elementy konstrukcji
Zbrojenie główne (podłużne): kto tu przenosi największe siły?
Zbrojenie główne, nazywane również podłużnym, to zestaw prętów stalowych biegnących wzdłuż belki. Jego głównym zadaniem jest przenoszenie momentów zginających, które powstają w wyniku działania obciążeń. W belce swobodnie podpartej, rozciąganej na dole, zbrojenie główne umieszcza się przede wszystkim w dolnej części przekroju. Jednakże, aby zapewnić odpowiednią sztywność i zapobiec pękaniu betonu na górnej powierzchni, stosuje się również pręty w strefie ściskanej. Minimalna średnica prętów zbrojenia głównego wynosi zazwyczaj 8 mm dla stref rozciąganych i 12 mm dla stref ściskanych, choć szczegółowe wymagania określa projekt.
Strzemiona: cichy bohater w walce ze ścinaniem
Strzemiona, czyli zbrojenie poprzeczne, to elementy zamykające układ zbrojenia belki. Ich kluczowa rola polega na przenoszeniu sił ścinających, które są szczególnie intensywne w strefach przypodporowych belki. Strzemiona obejmują pręty zbrojenia głównego, stabilizując je i zapobiegając ich wyboczeniu pod wpływem ściskania. Bez odpowiednio rozmieszczonych strzemion, belka byłaby znacznie bardziej podatna na zniszczenie pod wpływem ścinania.
Pręty montażowe: szkielet, który utrzymuje wszystko w ryzach
Pręty montażowe, choć często mniej liczne niż zbrojenie główne czy strzemiona, odgrywają nieocenioną rolę podczas procesu zbrojenia. Ich zadaniem jest stworzenie swoistego "szkieletu", który pozwala na precyzyjne uformowanie i utrzymanie we właściwej pozycji wszystkich pozostałych elementów zbrojenia zarówno prętów podłużnych, jak i strzemion. Dzięki nim konstrukcja zbrojeniowa jest stabilna i gotowa do betonowania, co minimalizuje ryzyko jej przemieszczenia się w trakcie wylewania mieszanki betonowej.
Wybór stali zbrojeniowej: gatunki i oznaczenia
Stal B500SP: dlaczego jest najczęstszym wyborem w Polsce?
W Polsce stal klasy B500SP jest zdecydowanie najpopularniejszym wyborem przy zbrojeniu belek żelbetowych. Jej popularność wynika z doskonałego połączenia wysokiej wytrzymałości i plastyczności. Granica plastyczności na poziomie 500 MPa oznacza, że stal ta jest w stanie przenieść znaczne obciążenia rozciągające, zanim zacznie się trwale odkształcać. Oznaczenie "SP" jest tu kluczowe wskazuje ono na podwyższoną ciągliwość (klasa C) oraz dobrą spajalność, co jest niezwykle ważne podczas wykonywania połączeń na zakład lub spawania. Stal B500SP spełnia rygorystyczne wymagania Eurokodu 2 i często posiada certyfikat EPSTAL, który stanowi dodatkową gwarancję jakości.
Jak czytać oznaczenia stali (B500A, B500B, B500SP) i co to jest ciągliwość?
Ciągliwość stali zbrojeniowej to jej zdolność do odkształcania się plastycznego przed zerwaniem. Jest to kluczowa właściwość zapewniająca bezpieczeństwo konstrukcji, ponieważ pozwala na zauważenie nadmiernych obciążeń poprzez widoczne odkształcenia, zanim dojdzie do nagłego zniszczenia. Wyróżniamy trzy klasy ciągliwości:
- Klasa A: Najniższa ciągliwość, stal stosunkowo krucha.
- Klasa B: Podwyższona ciągliwość w porównaniu do klasy A.
- Klasa C: Najwyższa ciągliwość, stal najbardziej plastyczna, charakteryzująca się największym wydłużeniem przed zerwaniem.
Oznaczenia takie jak B500A, B500B czy B500SP informują nas o granicy plastyczności (500 MPa) oraz klasie ciągliwości stali. Stal B500SP, należąca do klasy C, jest najbardziej pożądanym materiałem ze względu na swoje właściwości bezpieczeństwa.
Certyfikat EPSTAL: twoja gwarancja jakości na budowie
Posiadanie certyfikatu EPSTAL przez producenta stali zbrojeniowej to ważny sygnał dla każdego, kto dba o jakość i bezpieczeństwo realizowanych konstrukcji. Certyfikat ten jest potwierdzeniem, że stal spełnia wszystkie wymagania normowe, w tym te określone w Eurokodzie 2, a jej właściwości mechaniczne takie jak granica plastyczności, wytrzymałość na rozciąganie czy właśnie ciągliwość są zgodne z deklaracjami producenta. Dla wykonawcy, projektanta i inspektora nadzoru, stal z certyfikatem EPSTAL to pewność stosowania materiału o gwarantowanej jakości, co przekłada się bezpośrednio na niezawodność i trwałość budowanej konstrukcji.
Zasady konstrukcyjne zbrojenia: praktyczne wskazówki
Otulina betonowa: ile wynosi i dlaczego jej grubość jest krytyczna?
Otulina betonowato warstwa betonu znajdująca się pomiędzy zewnętrzną powierzchnią pręta zbrojeniowego a zewnętrzną powierzchnią elementu betonowego. Jej rola jest wielopłaszczyznowa: przede wszystkim chroni stal przed korozją, która mogłaby doprowadzić do jej osłabienia i utraty nośności. Dodatkowo, otulina zwiększa odporność ogniową elementu i zapewnia odpowiednią przyczepność między stalą a betonem. Minimalna grubość otuliny jest ściśle określona przez normę i zależy od wielu czynników, takich jak klasa ekspozycji (środowisko, w jakim znajduje się element), klasa konstrukcji (np. budynek mieszkalny, most) oraz średnica stosowanych prętów. Zbyt mała otulina to prosta droga do przedwczesnego zniszczenia zbrojenia, a zbyt duża może prowadzić do problemów z betonowaniem i osłabienia przekroju.
Minimalny i maksymalny rozstaw prętów głównych: jak uniknąć problemów z betonowaniem?
Odpowiedni rozstaw prętów głównego zbrojenia jest kluczowy dla prawidłowego przebiegu procesu betonowania. Z jednej strony, pręty muszą być rozmieszczone na tyle gęsto, aby skutecznie przenosić siły rozciągające i ściskające zgodnie z założeniami projektowymi. Z drugiej strony, przestrzeń między prętami musi być wystarczająco duża, aby mieszanka betonowa mogła swobodnie przepłynąć i zostać dokładnie zagęszczona, eliminując puste przestrzenie (tzw. raki betonowe). Norma PN-EN 1992-1-1 określa zarówno minimalny, jak i maksymalny dopuszczalny rozstaw prętów, który należy bezwzględnie przestrzegać, aby zapewnić integralność i wytrzymałość elementu.
Zakotwienie i łączenie na zakład: jak zapewnić ciągłość pracy zbrojenia?
Aby zbrojenie mogło efektywnie przenosić siły w całej swojej długości, kluczowe jest jego prawidłowe zakotwienie i łączenie. W przypadku belek, pręty muszą być odpowiednio długo "wpuszczone" w podporę lub w sąsiedni element konstrukcyjny, aby zapewnić ciągłość przenoszenia obciążeń. Podobnie, gdy długość belki wymaga połączenia dwóch prętów, muszą one być odpowiednio na siebie nałożone (tzw. zakład). Długość tego zakładu jest ściśle obliczana i zależy od średnicy prętów, klasy betonu i rodzaju obciążenia. Niestety, zbyt krótkie zakładki to jeden z najczęściej popełnianych błędów wykonawczych, który znacząco osłabia całą konstrukcję.
Prawidłowy rozstaw strzemion: gdzie zagęszczać, a gdzie można rozluźnić?
Rozstaw strzemion nie jest stały na całej długości belki. Zgodnie z zasadami projektowania, strzemiona powinny być rozmieszczone najgęściej w strefach przypodporowych, gdzie siły ścinające osiągają swoje maksimum. W miarę oddalania się od podpór, w kierunku środka rozpiętości belki, gdzie ścinanie jest mniejsze, rozstaw strzemion może być stopniowo zwiększany. Maksymalny dopuszczalny rozstaw podłużny strzemion jest określony przez normę i zazwyczaj wynosi 0,75h (gdzie h to wysokość przekroju belki), ale zawsze należy kierować się zapisami konkretnego projektu. Prawidłowe rozmieszczenie strzemion to gwarancja bezpieczeństwa przed zniszczeniem ścinanym.
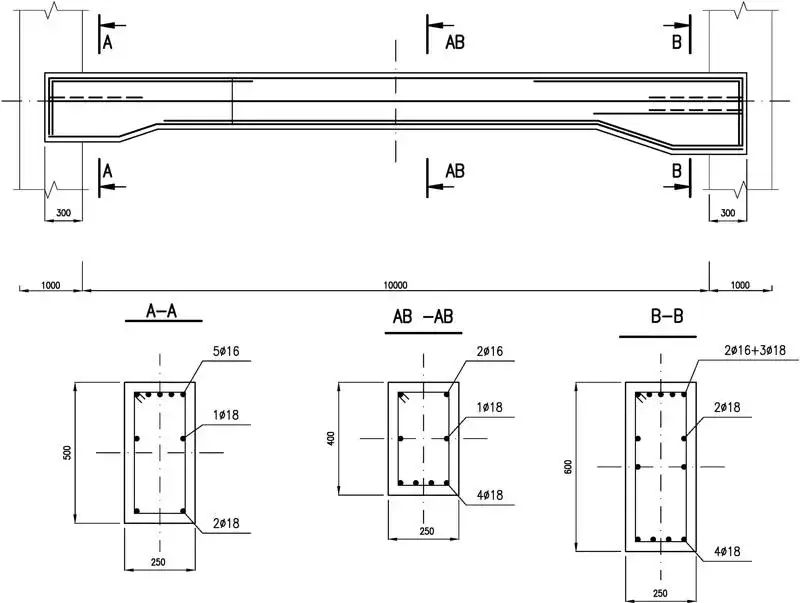
Czytanie rysunku zbrojenia belki: od projektu do realizacji
Rzut i przekrój belki: gdzie szukać najważniejszych informacji?
Projekt zbrojenia belki żelbetowej przedstawiany jest zazwyczaj na rysunkach technicznych, które składają się z rzutów i przekrojów. Rzut belki ukazuje jej ogólny kształt i rozmieszczenie zbrojenia w planie, natomiast przekroje pozwalają zajrzeć "do środka" i zobaczyć dokładne ułożenie prętów, ich średnice, liczbę oraz kształt. Na tych rysunkach znajdziemy wszystkie kluczowe informacje: średnice i liczbę prętów zbrojenia głównego (zarówno dolnego, jak i górnego), kształt i rozstaw strzemion, a także wymagane długości zakotwienia prętów w podporach. Zrozumienie tych rysunków jest absolutnie fundamentalne dla prawidłowego wykonania zbrojenia zgodnie z zamysłem projektanta.
Opis pręta: co oznacza zapis „12x #16 L=350”?
Na rysunkach zbrojeniowych często spotykamy skrócone opisy poszczególnych elementów. Przykład takiego zapisu, jak „12x #16 L=350”, można zinterpretować następująco: „12” oznacza, że mamy do czynienia z dwunastoma identycznymi prętami. „#16” informuje nas o średnicy każdego z tych prętów wynosi ona 16 milimetrów. „L=350” podaje długość całkowitą każdego pręta, czyli 350 centymetrów (lub 3,5 metra). Takie oznaczenia pozwalają szybko zidentyfikować potrzebne materiały i ich rozmieszczenie na budowie.
Tabela stali zbrojeniowej: jak szybko zweryfikować zapotrzebowanie materiałowe?
Integralną częścią dokumentacji projektowej jest zazwyczaj tabela stali zbrojeniowej. Jest to zestawienie wszystkich elementów zbrojeniowych przewidzianych w projekcie, uporządkowane według ich rodzaju, średnicy i kształtu. Tabela ta zawiera informacje o liczbie poszczególnych prętów, ich łącznej długości oraz masie. Dla wykonawcy jest to niezwykle cenne narzędzie, które pozwala na szybkie oszacowanie zapotrzebowania na materiały, zamówienie odpowiedniej ilości stali i kontrolę zgodności wykonanych prac z projektem. Umożliwia także efektywne planowanie pracy i minimalizację strat materiałowych.
Unikaj błędów: praktyczna checklista wykonawcy zbrojenia
- Niewłaściwa grubość otuliny betonowej: Zbyt mała otulina naraża stal na korozję, zbyt duża utrudnia betonowanie i osłabia przekrój. Jak uniknąć: Stosuj odpowiednie podkładki dystansowe o gwarantowanej grubości.
- Nieprawidłowy rozstaw prętów głównych lub strzemion: Zbyt mały rozstaw uniemożliwia prawidłowe zagęszczenie betonu, zbyt duży osłabia nośność. Jak uniknąć: Precyzyjnie przestrzegaj wymiarów podanych na rysunku technicznym.
- Zbyt krótka długość zakładów przy łączeniu prętów: Prowadzi do utraty ciągłości przenoszenia sił i osłabienia konstrukcji. Jak uniknąć: Bezwzględnie stosuj długości zakładów obliczone przez projektanta.
- Stosowanie prętów o mniejszej średnicy niż w projekcie: Bezpośrednio obniża nośność zbrojenia. Jak uniknąć: Dokładnie weryfikuj średnice dostarczanej stali z projektem.
- Niestabilne mocowanie szkieletu zbrojeniowego: Może prowadzić do jego przemieszczenia podczas betonowania, co skutkuje nieprawidłowym rozmieszczeniem zbrojenia. Jak uniknąć: Solidnie mocuj zbrojenie do szalunków i elementów sąsiednich.
- Brak zagęszczenia strzemion w strefach przypodporowych: Tam, gdzie siły ścinające są największe, zbrojenie musi być najgęstsze. Jak uniknąć: Zgodnie z projektem, zagęszczaj strzemiona w rejonach podpór.
