Suszenie drewna konstrukcyjnego: Poradnik. Jak uniknąć błędów?
Dowiedz się, jak suszyć drewno konstrukcyjne. Poznaj metody, normy wilgotności i uniknij błędów, by zapewnić trwałość budowy. Sprawdź nasz poradnik!
Kategoria 'Konstrukcje' to miejsce, gdzie pasjonaci budownictwa znajdą wszystko, co ich interesuje. Poruszamy różnorodne tematy związane z projektowaniem, materiałami budowlanymi oraz nowoczesnymi technologiami w branży. Nasze artykuły dostarczają praktycznych porad, inspiracji oraz aktualnych trendów, które pomogą Ci zrozumieć złożoność konstrukcji i ich wpływ na otaczający nas świat. Bez względu na to, czy jesteś profesjonalistą, czy dopiero zaczynasz swoją przygodę z budownictwem, znajdziesz tu wartościowe informacje. Zostań z nami i zgłębiaj tajniki budownictwa razem z nami!
Dowiedz się, jak suszyć drewno konstrukcyjne. Poznaj metody, normy wilgotności i uniknij błędów, by zapewnić trwałość budowy. Sprawdź nasz poradnik!
Dowiedz się, jak prawidłowo zbroić nadproże bramy garażowej. Poznaj materiały, błędy i instrukcje krok po kroku. Zapewnij bezpieczeństwo konstrukcji!
Budujesz konstrukcję drewnianą? Odkryj nasz praktyczny poradnik krok po kroku: od formalności, przez wybór drewna, po montaż i impregnację.
Sprawdź, ile zarabia projektant konstrukcji w Polsce! Poznaj widełki płac, wpływ uprawnień, doświadczenia, BIM i lokalizacji. Odkryj swój potencjał zarobkowy.
Poznaj wiązarkę Makita DTR180: przyspiesza pracę, redukuje zmęczenie i poprawia jakość zbrojenia. Sprawdź, czy warto zainwestować!
Odkryj płyty ażurowe z Castoramy! Dowiedz się, jak je zamontować, jakie mają zastosowania i ceny. Solidna nawierzchnia i ekologiczne rozwiązanie. Sprawdź nasz poradnik!
Naucz się prawidłowo wiązać zbrojenie krok po kroku! Poznaj narzędzia, techniki i najczęstsze błędy. Sprawdź nasz kompleksowy poradnik.
Poznaj kompleksowy przewodnik po obliczaniu konstrukcji stalowych wg Eurokodu 3. Zapewnij bezpieczeństwo i zgodność z normami. Odkryj niezbędne dane i metody.
Szukasz klucza do zbrojenia w Castoramie? Odkryj różnice między ręcznym a półautomatycznym i wybierz idealne narzędzie do swoich prac budowlanych. Sprawdź nasz poradnik!
Poznaj ceny zbrojenia na 2026! Sprawdź koszt stali, robocizny i dowiedz się, jak optymalizować wydatki. Czytaj nasz poradnik!
Budujesz antresolę w kamienicy? Poznaj kluczowe formalności, koszty i aspekty techniczne. Odkryj, jak zrobić to legalnie i bezpiecznie!
Poznaj aktualne ceny stali konstrukcyjnej na 2026 r. w Polsce. Sprawdź, co wpływa na koszt i jak mądrze kupować stal.
Poznaj kluczowe dystanse zbrojeniowe: rodzaje, zastosowanie i błędy. Dowiedz się, jak wybrać najlepsze dla trwałości konstrukcji. Sprawdź nasz poradnik!
Poznaj kluczowe etapy zbrojenia płyty fundamentowej, uniknij błędów i zapewnij trwałość domu. Odkryj nasz ekspercki poradnik!
Wybierz najlepszą wiązarkę do zbrojenia! Poznaj kluczowe parametry, ranking modeli i koszty. Oszczędź czas i pieniądze sprawdź nasz poradnik!
Szukasz wiązarki do zbrojeń? Odkryj kluczowe parametry, porównaj modele Makita, Max, Tjep i wybierz najlepszą inwestycję. Sprawdź nasz przewodnik!
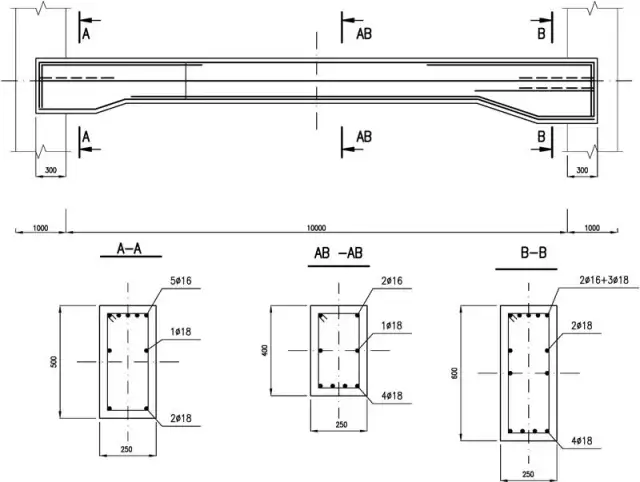
Poznaj zasady zbrojenia belki żelbetowej wg Eurokodu 2. Praktyczny poradnik o normach, materiałach i błędach wykonawczych. Sprawdź jak prawidłowo zbroić!
Poznaj rodzaje dystansów do zbrojenia, zasady montażu i najczęstsze błędy. Zapewnij trwałość konstrukcji. Sprawdź nasz praktyczny poradnik!
Poznaj płyty ażurowe zbrojone: klucz do trwałego, ekologicznego podjazdu i parkingu. Sprawdź parametry, montaż i koszty.
Jak prawidłowo zbroić nadproże 3m? Poznaj projekt, materiały, kluczowe parametry i uniknij błędów. Sprawdź nasz poradnik!
Poznaj kluczowe zasady zbrojenia stropów monolitycznych. Dowiedz się, jak prawidłowo wykonać zbrojenie i uniknąć 7 najgroźniejszych błędów. Sprawdź nasz poradnik!
Odkryj, jak prawidłowo zbroić schody na gruncie. Poznaj kluczowe etapy, materiały i uniknij błędów. Sprawdź nasz praktyczny poradnik!
Poznaj płyty betonowe zbrojone: zastosowania, parametry, wykonanie krok po kroku i koszty. Sprawdź, jak zapewnić trwałość konstrukcji!
Poznaj metody łączenia prętów zbrojeniowych wg Eurokodu 2: zakład, mechaniczne, spawanie. Odkryj zasady obliczeń i unikaj błędów!
Poznaj kluczowe wady zbrojenia kompozytowego: kruche pękanie, niski moduł sprężystości, odporność ogniowa. Dowiedz się, czy warto wybrać kompozyt.